CASA INDIPENDENTE CON VISTA
Lago di Lugano - Corrido Prezzo: 290'000€
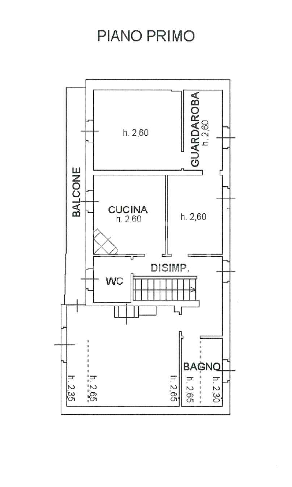
Casa semi indipendente, libera su tre lati, parzialmente da ristrutturare, con terreno di proprietà. Esposizione solare eccellente e vista spettacolare sul lago di Lugano e vallata di Porlezza. L' immobile, con i suoi generosi spazi, si sviluppa su tre livelli con circa 6 vani, oltre cantina, box, ripostiglio ed un immenso terreno con strada di accesso diretta. La settima foto rappresenta la casa ristrutturata, fatta con AI.

G
mq
CO.249
annuncio
Casa semi indipendente, libera su tre lati, parzialmente da ristrutturare, con terreno di proprietà. Esposizione solare eccellente e vista spettacolare sul lago di Lugano e vallata di Porlezza. L' immobile, con i suoi generosi spazi, si sviluppa su tre livelli con circa 6 vani, oltre cantina, box, ripostiglio ed un immenso terreno con strada di accesso diretta. La settima foto rappresenta la casa ristrutturata, fatta con AI.

G
Richiedi maggiori informazioni
